hỗ trợ trực tuyến
Hướng dẫn Toàn diện: Quy trình Thiết kế Bar Cocktail, Bar Rượu và Bar Cafe Chuyên nghiệp 360°
Hướng dẫn Toàn diện: Quy trình Thiết kế Bar Cocktail, Bar Rượu và Bar Cafe Chuyên nghiệp 360°
Quy trình thiết kế bar cafe, thiết kế bar rượu hay thiết kế bar cocktail không chỉ là việc sắp xếp thiết bị, mà là một dự án kỹ thuật và kiến trúc phức tạp. IQL cung cấp quy trình 6 bước toàn diện, từ khảo sát đến lắp đặt quầy bar trọn gói, đảm bảo tính thẩm mỹ, hiệu suất và ROI tối ưu.

Bước 1: Khảo sát Nhu cầu và Phân tích Menu
-
Mô hình Kinh doanh: Xác định mô hình (Takeaway, Lounge, Fine Dining) để định hướng thiết bị (tốc độ hay sự tinh tế).
-
Năng lực Sản xuất: Tính toán công suất phục vụ đỉnh điểm (Peak Hour) để xác định kích thước máy làm đá, số lượng bồn rửa và công suất máy pha cà phê.
-
Nguyên tắc Ergonomics: Đảm bảo thiết kế bar cocktail có chiều cao và bố cục phù hợp với thao tác của Bartender, giảm thiểu di chuyển.
Bước 2: Thiết kế Sơ bộ (2D Layout) và Phân khu Chức năng
-
Phân khu Wet & Dry: Chia rõ khu vực pha chế ướt (Ice Bin, Sink, Speed Rail) và khu vực khô (lưu trữ ly, rượu đặc biệt).
-
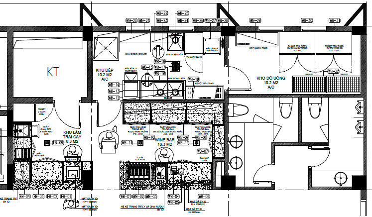
Workflow: Bố trí thiết bị theo luồng làm việc: Máy xay => Máy pha => Bồn rửa => Điểm giao hàng (xem S.65).
Bước 3: Thiết kế Chi tiết (2D/3D Visualization) và Kỹ thuật
-
Mô phỏng Không gian: Sử dụng mô hình 2D/3D để khách hàng hình dung trực quan về thiết kế bar cafe hoặc thiết kế bar rượu sau khi hoàn thành.
-
Bản vẽ Kỹ thuật: Xác định vị trí chính xác của đường điện, đường nước cấp (có lọc) và thoát nước thải. Đây là bước quan trọng nhất trước khi lắp đặt quầy bar.
-
Lựa chọn Vật liệu: Xác định các mô-đun Underbar bằng Inox 304 và mặt quầy (quarzt, đá tự nhiên) phù hợp với thẩm mỹ chung.
Bước 4: Gia công Quầy Inox Tùy chỉnh (Fabrication)
-
Chất lượng Inox: IQL chỉ sử dụng Inox 304 dày, chống ăn mòn.
-
Kỹ thuật Hàn TIG: Đảm bảo các mối hàn Inox (chủ yếu là cho Ice Bin, Speed Rail) phải liền mạch, nhẵn bóng, không có kẽ hở vệ sinh.
Bước 5: Lắp đặt Thiết bị và Hệ thống Kỹ thuật
-
Lắp đặt Đường nước Mềm: Đặc biệt quan trọng cho thiết kế bar cafe (bảo vệ máy pha cà phê).
-
Kiểm tra Thoát nước: Đảm bảo Ice Bin và Sink có độ dốc thoát nước chuẩn, không bị đọng nước.
Bước 6: Vận hành Thử nghiệm và Bàn giao Kỹ thuật
-
Hiệu chuẩn Thiết bị: Kiểm tra nhiệt độ của Tủ Mát Rượu (Wine Cooler) và áp suất của Máy Pha Cà phê.
-
Đào tạo: Hướng dẫn nhân viên vận hành và bảo trì quầy bar.

CÔNG TY CỔ PHẦN NÂNG CAO CHẤT LƯỢNG CUỘC SỐNG IQL
IQL là chuyên gia thiết kế bar cafe, thiết kế bar rượu và thiết kế bar cocktail theo tiêu chuẩn quốc tế. Chúng tôi cung cấp dịch vụ lắp đặt quầy bar trọn gói, từ bản vẽ đến gia công Inox tùy chỉnh, cam kết mang lại hiệu suất vận hành vượt trội và tính thẩm mỹ cao nhất.
Tại TP. Hồ Chí Minh:
-
Văn phòng: Số 195/5 Đường Nguyễn Văn Thương, Phường 25, Quận Bình Thạnh, TP. HCM
-
Điện thoại: 028 3519 0005
-
Hotline/Zalo: 0904 259 251
Tại Hà Nội:
-
Văn phòng: B21 lô 19, khu Đô thị Định Công, phường Định Công, Hoàng Mai, Hà Nội
-
Điện thoại: 024 3565 8522
-
Hotline/Zalo: 0982 906 299
Email: sales@iqlpro.com